Beschreibung
Achtung: Gitter mit Pulverbeschichtung können in der 3. Septemberwoche rausgehen
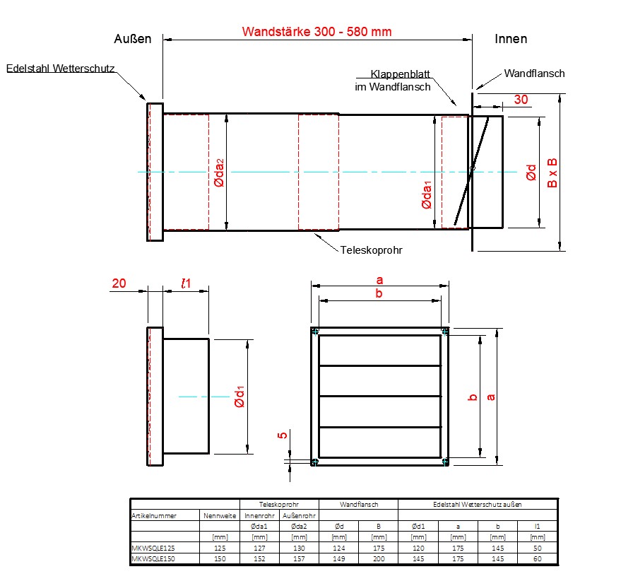
Mauerkasten für z.b. Dunstabzug mit Rückstauklappe im Teleskop Rohr und Edelstahl Wetterschutz
- wahlweise in den Nennweiten 125 und 150
- Teleskop Rohr ist ausziehbar von 300mm Länge auf 580mm Länge
- Wandflansch zum Abdecken der Kernbohrung und zum Weiterverbinden mit starrem Rohr oder Alu Flex Rohr
- Wetterschutzgitter WSQLE aus Edelstahl mit beweglichen Lamellen, Lamellen öffnen sich bei eingeschalteter Haube und schließen bei abgeschalteter Haube. Mit Gummidichtband zum Anschluss an die Außenfassade.
- Mit vier Stück Edelstahl Schauben zur Außen-Montage
Optionen:
- mit oder ohne Edelstahl Insektenschutzgitter ISGR im rückwärtigen Anschlussstutzen des Gitters, werkzeuglos zu Reinigungszwecken entnehnmbar
- Edelstahlgitter Pulverbeschichtet in weiß RAL 9016, antrazit grau RAL 7016 oder braun RAL8017 jeweils mit farblich passenden Edelstahl Schrauben. Pulverbeschichtung für den Außenbereich, aus deutschem Fachbetrieb.
Jede Lammelle ist einzeln beschichtet!Montageanleitung für Kernbohrung und Mauerkasten Einbau hier als PDF zum download


