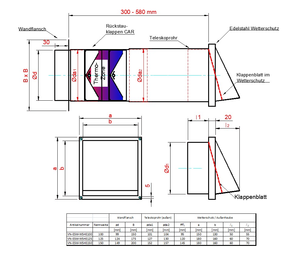
Beschreibung
Energiesparmauerkasten Blower Door dicht mit Zertifikat mit Edelstahl Außengitter mit Haube
in der Nennweiten 100, 125 und 150mm
- wahlweise mit oder ohne Edelstahl Insektenschutzgitter
- Teleskoprohr mit 2 Stück CAR Klappen sorgen für die Blower Door Dichtheit
- Die die beiden Klappen sitzen im kleineren der beiden Teleskoprohre,
somit ist ein Einstellen auf im gesamten Bereich der gewünschten Mauerstärke möglich. - Für Niedrig Energiehäuser, Passiv Häuser und auch für alle anderen Häuser im Bestand.
Denn, nach schließen der Haustür und der Fenster ist der Mauerdurchbruch der Dunsthaube der
größte freie Querschnitt durch den Wind und Kälte eindringen kann. - Für die im Zertifikat bescheinigte Dichtheit sorgen zwei Stück Sturmklappen Typ CAR welche direkt hinter
einander im Teleskoprohr verbaut sind. Natürlich erhalten Sie ein ganzes Teleskoprohr - Versuche mit diversen Hauben und Rohr oder Flachkanal Anschlüssen haben gezeigt das trotz des entstehenden Druckverlustes bei kleinster Lüfterstufe Abluft bestimmungsgemäß durch das System gefördert wird.
- Lieferung inkl. Blower Door Zertifikat in gedruckter FormBlower Door Zertifikat hier zum Download als PDF Datei Ø125
Blower Door Zertifikat hier zum Download als PDF Datei Ø150Montageanleitung für Kernbohrung und Mauerkasten Einbau hier als PDF zum download







